Featured

Чертежи и схемы для проекта освещения в Visio.

Введение

Для того чтобы сделать проект освещения небольшого помещения, не обязательно быть «крутым» проектировщиком и иметь дорогостоящее, сложное программное обеспечение, доступное только подготовленным пользователям. Используя доступные инструменты, не требующие значительных затрат и времени на обучение, можно создать качественный проект.

В этой статье я на примере покажу, как с помощью простой и удобной программы Microsoft Visio и созданных мной трафаретов условных графических обозначений выполнить полный комплект чертежей и схем для проекта освещения квартиры.

Вы научитесь самостоятельно чертить:

  • План квартиры (здания)
  • Схему осветительной сети
  • Схему розеточной сети
  • Однолинейную схему электроснабжения квартиры

Уроки рассчитаны на начинающих пользователей ПК. Опытные пользователи Visio также найдут здесь полезные приёмы работы.

План квартиры

Эскиз квартиры с размерами комнат, на основе которого необходимо начертить план:

Эскиз квартиры
Эскиз квартиры

Для черчения плана квартиры используем программу Visio.

  1. Запускаем программу Visio.
  2. В меню Файл последовательно выбираем команды Создать → Карты и планы этажей, а затем — команду План этажа.
    По умолчанию этот шаблон будет открыт на масштабированной странице документа размером А1 и в масштабе 1 : 50 с альбомной ориентацией.
  3. Исходя из размеров квартиры — 14,1 × 10 м — выбираем свой размер страницы и масштаб:
    Для этого в меню Файл выбираем команду Параметры страницы.
    В закладке Размер страницы выбираем предопределённый размер А3.
    Размер страницы
    Рис. 1
  4. В закладке Масштаб документа выбираем предопределённый масштаб 1 : 50.
    Масштаб документа
    Рис. 2
  5. Произведём необходимую настройку инструментов:
    На панели инструментов Вид включим инструмент Размер и положение.
    На панели инструментов Привязать и приклеить оставим включённым только пункт Привязка к рамке выравнивания.
    Настройка инструментов
    Рис. 3
  6. Из набора элементов Структурные элементы, расположенного слева на панели Фигуры, перетащите на страницу документа фигуру Место. Последовательно нажимая на панели Размер и положение кнопки Ширина и Высота, введите значения, соответствующие длине и ширине комнаты 1.
    Фигуры
    Рис. 4
  7. Повторите пункт 6 для каждого помещения квартиры, располагая полученные фигуры в соответствии с планом. Получим следующее изображение:
    Расположение фигур Место
    Рис. 5
    Для фигуры Место, окружённой другими фигурами (например, под номером 7), устанавливать размеры не обязательно. Достаточно разместить её в нужном месте и, щёлкнув правой кнопкой мыши, выбрать из контекстного меню Автоподбор размера. Фигура примет необходимые размеры.
    Для изменения масштаба отображения документа во время работы удерживайте клавишу Ctrl и прокручивайте колёсико мыши.
  8. Так как области 6, 7 и 8 не имеют между собой перегородок, выполним следующие действия:
    Удерживая клавишу Ctrl, щёлкните последовательно на каждой из этих областей, выделив все три фигуры. Щёлкните правой кнопкой мыши по выделенным фигурам и выберите из контекстного меню пункт Объединение.
  9. Выделите все фигуры левой кнопкой мыши. Щёлкните правой кнопкой мыши по выделенным фигурам и выберите пункт Преобразовать в стены… В появившемся окне для нашего примера достаточно выбрать параметры, как показано на рисунке:
    Преобразование в стены
    Рис. 6
    Нажмите OK, и рисунок 5 преобразуется в квартиру со стенами.
  10. Так как стена с окнами, расположенная сверху, является наружной, выделите её левой кнопкой мыши и удалите, нажав клавишу Delete.
    Из набора элементов Структурные элементы на панели Фигуры перетащите на страницу документа фигуру Наружная стена.
    На панели Размер и положение нажмите кнопку Длина и введите значение 14,1 м. Установите стену на место удалённой, используя мышь и клавиши перемещения (вверх, вниз, влево, вправо). Для повышения точности перемещения до 1 пикселя используйте клавиши перемещения вместе с нажатой клавишей Shift.
  11. Далее устанавливаем на плане окна и двери. Из набора элементов Структурные элементы выберите и перетащите на страницу документа соответствующие фигуры, размещая их в нужных проёмах. Они автоматически займут положение в стене. Для изменения размера дверей и окон используйте инструмент Размер и положение. Чтобы изменить направление открытия, выделите фигуру, щёлкните правой кнопкой мыши и выберите нужную команду в контекстном меню.
    Установка окон и дверей
    Рис. 7
    При необходимости можно добавить к стенам размерные линии. Для этого щёлкните правой кнопкой мыши по фигуре стены и выберите команду Добавить размер. Положение размерных линий и текста можно изменить, перетащив управляющий маркер (жёлтый ромб).
    Для добавления дополнительных размеров на плане в меню Файл последовательно выберите: Фигуры → Дополнительные решения Visio → Размеры. Перетащите нужные фигуры размеров на страницу документа.
  12. Для нашего проекта нанесём на план назначение помещений и их размеры.
    В меню Вставка выберите команду Надпись (можно также нажать кнопку Текст на панели инструментов Стандартная. Если кнопка не отображается, щёлкните стрелку рядом с кнопкой Блок текста и выберите пункт Текст).
    Щёлкните в любом месте страницы или, удерживая кнопку мыши, нарисуйте рамку нужного размера. Введите текст. Повторите для каждого текстового блока. Полученные блоки можно перемещать, а двойной щелчок позволит редактировать текст.
  13. Сохраните полученный документ. В дальнейшем он понадобится для составления осветительной и розеточной сети.

Схема осветительной сети

После того как выбраны элементы осветительной сети и определены места их установки, необходимо разместить их на плане квартиры — начертить схему осветительной сети. Для этой цели нам пригодится план квартиры, созданный ранее.

При оформлении схемы осветительной сети следует руководствоваться:
ГОСТ 21.608-84 «Внутреннее электрическое освещение».
ГОСТ 21.614-88 «Изображения условные графические электрооборудования и проводок на планах».

  1. Открываем план квартиры, созданный на прошлом занятии в Visio.
    В левом нижнем углу окна документа щёлкните правой кнопкой мыши по вкладке страницы и выберите в контекстном меню команду Вставить страницу.
    На вкладке Свойства страницы введите имя для страницы, например, СОС (схема осветительной сети), и задайте единицы измерения.
    Добавить страницу
    Рис. 1
    На вкладках Масштаб документа и Размер страницы установите те же параметры, что и на странице с планом квартиры.
  2. Откройте страницу с планом квартиры. В меню Правка выберите команду Выделить всё, затем — Копировать.
    Перейдите на новую страницу (СОС) и выполните команду Вставить.
    На вставленном плане (с выделенными всеми элементами) щёлкните правой кнопкой мыши и в контекстном меню выберите: Фигура → Группировать.
    Снова щёлкните правой кнопкой мыши по сгруппированному плану и выберите: Формат → Слой. В открывшемся окне нажмите Создать… и задайте имя слоя, например, План.
    Создание слоя
    Рис. 2.1
    Сгруппированный план можно перемещать по листу с помощью мыши или клавиш со стрелками.
    Обратите внимание на панели инструментов Вид и Привязать и приклеить — включите пункты, указанные на рисунке ниже.
    Панели инструментов
    Рис. 2.2
    Чтобы показать или скрыть панель инструментов, щёлкните правой кнопкой мыши в свободной области панелей и выберите нужные пункты.
    Для более комфортной работы можно дополнительно настроить Силу привязки: в меню Сервис → Привязать и приклеить, на вкладке Дополнительно подберите значения опытным путём.
    Сила привязки
    Рис. 3
  3. Далее понадобятся фигуры (трафареты) условных графических обозначений электрооборудования и проводок по ГОСТ 21.614-88. Создавать их самостоятельно — длительный и трудоёмкий процесс, поэтому в данном примере будем использовать готовые трафареты из библиотеки Электрооборудование и проводки на планах*.
    Фигуры, использовавшиеся для черчения плана, больше не нужны — их можно закрыть. Для этого щёлкните правой кнопкой мыши по вкладке Фигуры и выберите Закрыть все наборы элементов.
    В меню Файл → Открыть перейдите в папку Мои фигуры → GOST Electro → Эл.оборудование и проводки на планах и откройте нужные трафареты.
  4. Для разметки мест установки элементов осветительной сети в меню Файл последовательно выберите: Фигуры → Дополнительные решения Visio → Размеры.
    Выделите нужную фигуру размера, удерживая кнопку мыши, перетащите её на страницу. На панели Размер и положение нажмите кнопку Длина, введите значение и щёлкните в свободном месте документа. Размерная линия примет заданное значение.
    Переместите её к начальной точке отсчёта для указания расстояния до места установки.
    Разметка
    Рис. 4
  5. Выполним ещё одну подготовительную операцию — установим направляющие.
    Подведите указатель мыши к вертикальной (или горизонтальной) линейке до появления значка (), нажмите левую кнопку и перетащите направляющую на документ.
    На предполагаемые линии прохождения проводки также нанесите направляющие. Для равномерного распределения линий создайте временный шаблон-квадрат со стороной, равной выбранному расстоянию между линиями (с учётом масштаба).
    Установка направляющих
    Рис. 5
    Для точной установки направляющих используйте клавиши со стрелками. Временные шаблоны-квадраты следует удалить после окончания разметки.
    Действия по предварительной разметке и нанесению направляющих можно пропустить, но это снизит качество схемы и не сэкономит время.
  6. После нанесения направляющих в меню Вид выберите команду Свойства слоя. В списке найдите слой План и снимите галочки с пунктов Привязка и Приклеивание. Это упростит разводку линий проводки.
  7. Теперь, когда выполнена разметка и установлены направляющие, размещение элементов и проводки не составит труда.
    Откройте нужные наборы фигур из библиотеки Электрооборудование и проводки на планах, выберите обозначения осветительной сети и перетащите их на план.
    Во время расстановки оставьте включённым пункт Привязать к направляющим на панели Привязать и приклеить.
    Некоторые моменты рассмотрим подробнее:

    7.1. Поворот фигур
    Для поворота на угол, кратный 90°, используйте панель инструментов Действие.

    Панель инструментов Действие
    Рис. 6
    Чтобы повернуть фигуру на произвольный угол: выделите её, наведите курсор на маркер поворота , дождитесь появления кругового курсора и перетащите, поворачивая фигуру.
    Для поворота на заданный угол: в панели Размер и положение в поле Угол введите значение и нажмите Enter.
    Поворот фигуры
    Рис. 7

    7.2. Цветовое выделение
    Для лучшего восприятия элементы и линии часто выделяют цветом. Используйте кнопки Цвет заливки, Цвет линии, Толщина линии на панели Форматирование.

    Формат фигуры
    Рис. 8

    7.3. Копирование фигур
    Однотипные элементы (например, выключатели) удобно копировать: выделите отформатированную фигуру, удерживая Ctrl, перетащите её в новое место.

    7.4. Толщина линий проводки
    По ГОСТ 21.614-88 толщина линий — 1 мм. Чтобы изменить её, выделите линию, в меню Формат → Линия выберите Другая и введите значение с суффиксом mm (например, 0.5mm). Это задаст толщину в миллиметрах.

    Толщина линии
    Рис. 9

    7.5. Масштабирование
    Изменяйте масштаб документа, удерживая Ctrl и прокручивая колёсико мыши.

    7.6. Обозначение числа проводов
    Вместо линий с косыми чёрточками удобнее использовать цифровые обозначения, размещая их в местах, не загромождающих чертёж.

    Линии проводок
    Рис. 10

    7.7. Перемещение фигур
    Используйте команды панели Действие для точного позиционирования.

    Переместить фигуру
    Рис. 11

    7.8. Скрытие направляющих
    После завершения размещения направляющие можно скрыть через панель Вид. При необходимости их всегда можно включить снова.

  8. Для нанесения надписей (типы светильников, освещённость, номера групп) используем фигуры из набора Текст на планах.

    8.1. Надпись (Рис. 12)
    Перетащите фигуру на страницу, введите текст над чертой, нажмите Enter, введите текст под чертой. Перетащите управляющие точки и для регулировки длины.

    Текст
    Рис. 12

    8.2. Надпись (Рис. 13)
    Щёлкните по текстовому блоку, замените количество и тип светильников. Выделите часть с разделительной чертой и введите данные, как в п. 8.1.

    Текст
    Рис. 13
    Остальные текстовые блоки и выноски из этого набора не требуют дополнительных пояснений.
  9. Заключительный этап — нанесение основной надписи по ГОСТ 2.104.
    Откройте набор фигур Основные надписи ГОСТ 2.104 из библиотеки GOST Electro, выберите нужную форму и разместите на листе. Она автоматически примет правильные размеры независимо от масштаба. При наведении на графу появится подсказка по её заполнению.
    Если нужно сдвинуть план в пределах листа, выделите всё (Правка → Выделить всё) и переместите с помощью клавиш со стрелками. Основная надпись и рамка останутся на месте.
    Основная надпись
    Рис. 14
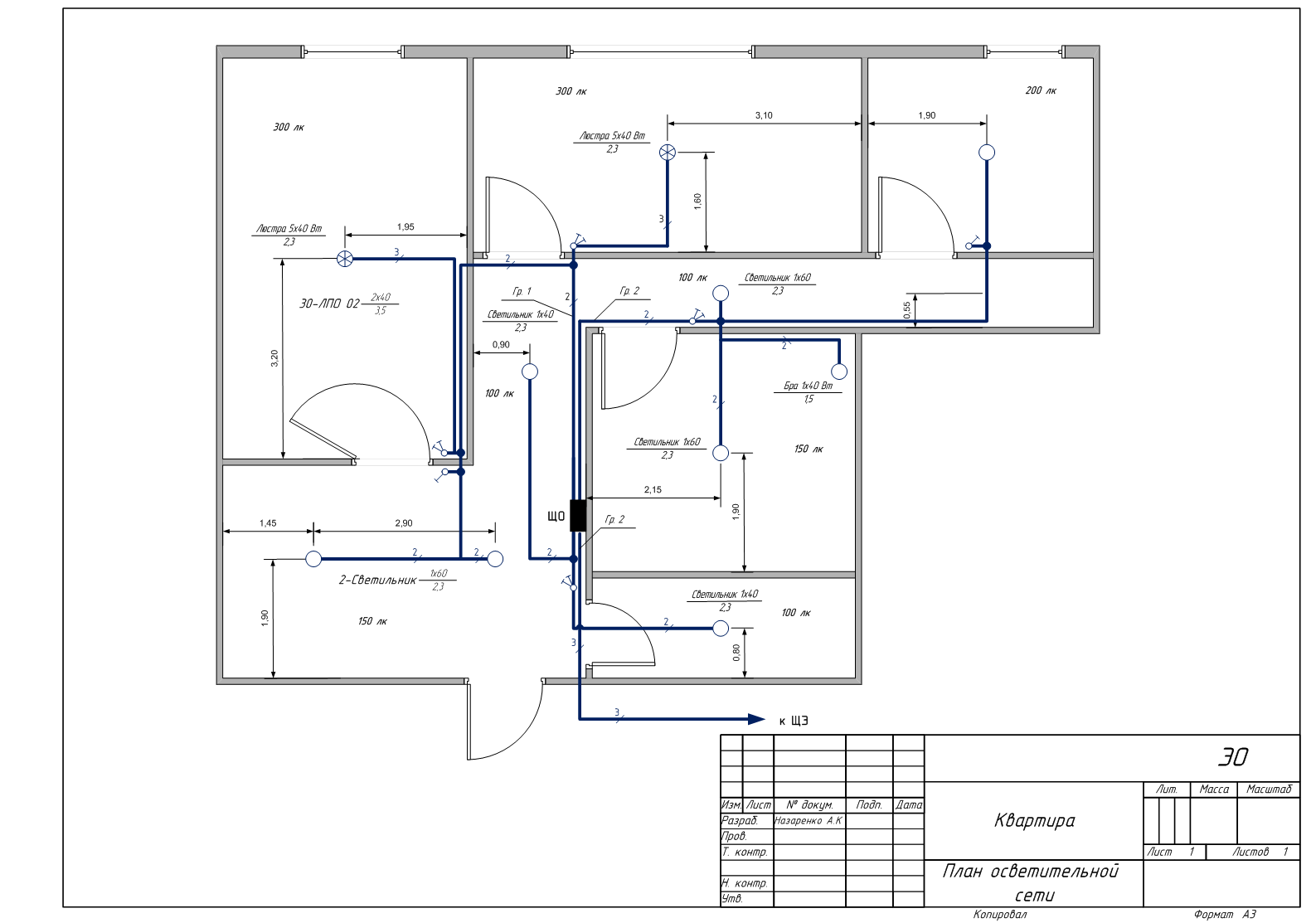
  10. В результате получился чертёж, который можно посмотреть в натуральную величину, кликнув по рисунку ниже.
    Внимание: все данные на схеме (освещённость, число проводов и т.д.) условные — приведены только для иллюстрации.
    Схема осветительной сети
    Рис. 15

На этом наше занятие закончено. На следующем занятии мы начертим схему розеточной сети и познакомимся с другими возможностями и инструментами Visio.

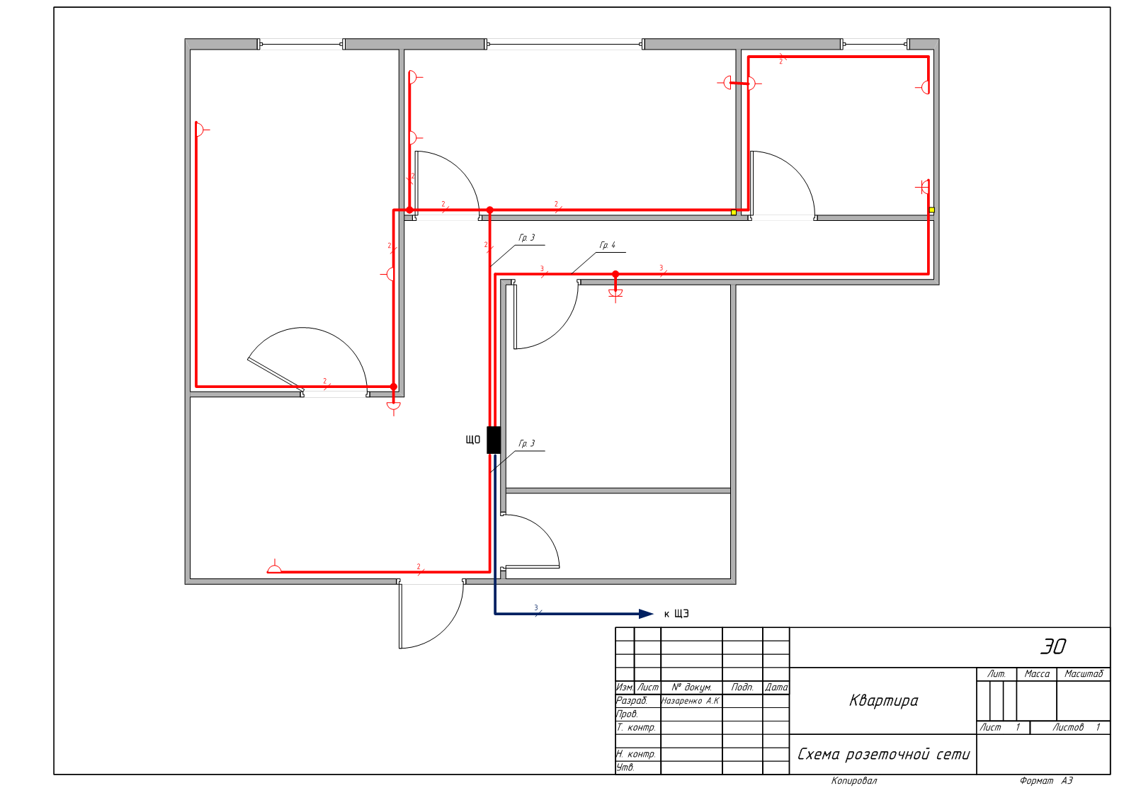
Схема розеточной сети

Если вы внимательно изучили предыдущий урок — «Схема осветительной сети», — начертить схему розеточной сети не составит труда. Для этого достаточно повторить все пункты из урока 2, заменив на плане светильники и выключатели на розетки.

Целью данного урока является знакомство с дополнительными функциями и инструментами Visio, которые не рассматривались ранее, но могут упростить создание схемы и пригодятся в других проектах. Поэтому этапы, уже разобранные в прошлом занятии, здесь подробно не повторяются.

Кроме того, на предыдущем уроке мы уже выполнили некоторые операции (например, нанесение временных направляющих для линий проводки, установка щитка освещения), которые можно скопировать и тем самым сэкономить время.

Итак, чертим схему розеточной сети:

  1. Открываем наш проект с планом и схемой осветительной сети и вставляем новую страницу: Схема розеточной сети.
  2. Открываем страницу со схемой осветительной сети. Чтобы скопировать документ вместе с направляющими, на панели инструментов Вид включаем кнопку Направляющие.
    Направляющие отобразятся на листе документа.
    Направляющие
    Рис. 1
  3. В меню Правка выберите команду Выделить всё, затем — Копировать.
  4. Открываем страницу схемы розеточной сети и выполняем команду Вставить.
  5. Теперь нужно удалить элементы осветительной сети, не нужные в розеточной схеме, и оставить те, которые можно использовать повторно. Вместо поочерёдного удаления (что неэффективно), мы выделим только нужные элементы:

    5.1. Скрываем направляющие, выключив кнопку на панели Вид.

    5.2. Выделяем сгруппированный план со схемой и в контекстном меню выбираем Разгруппировать (группировка была выполнена на прошлом занятии).

    5.3. Удерживая клавишу Ctrl, левой кнопкой мыши последовательно выделяем элементы, общие для обеих схем: щиток освещения, линию проводки к этажному щитку, а также некоторые участки проводки, пригодные для розеточной сети.

    5.4. В меню Формат выбираем Слой → Создать. В окне Создание слоя присваиваем имя, например, Розеточная, и нажимаем OK.

    Создание слоя
    Рис. 2

    5.5. В меню Вид выбираем Свойства слоя… и в открывшемся окне включаем блокировку слоёв План и Розеточная, отметив соответствующие пункты. Нажимаем OK.

    Блокировка слоя
    Рис. 3

    5.6. Выделяем весь план со всеми элементами (рамкой или через Выделить всё) и нажимаем клавишу Delete. На листе останутся только элементы, принадлежащие заблокированным слоям.
    При необходимости можно снова открыть Свойства слоя…, снять блокировку и отметить пункт Удалить неиспользуемые слои перед нажатием OK.

  6. Включаем отображение направляющих и, используя соответствующие наборы фигур из библиотеки Электрооборудование и проводки на планах*, выбираем обозначения элементов розеточной сети и размещаем их на плане — аналогично тому, как это делалось при создании схемы осветительной сети.
  7. На завершающем этапе наносим необходимые надписи и заполняем графы основной надписи. Всего за несколько минут получаем готовый план розеточной сети:
    Схема розеточной сети
    Рис. 4
    Все данные на изображённой схеме розеточной сети (число проводов в линии и т.д.) условные — приведены только для примера.

Однолинейная схема электроснабжения (схема питающей сети)

Прежде всего напомню, что данные материалы предназначены не для профессиональных проектировщиков, а для электротехнического персонала, для которого проектирование носит эпизодический характер. Это предполагает минимальные затраты на программное обеспечение и простоту его использования. Поэтому мы не будем стремиться к оригинальности, а начертим схему питающей сети в уже знакомой программе — Visio.

Целью занятия является изучение одного из способов оформления уже разработанной схемы. Поэтому чертить мы будем абстрактную однолинейную схему питающей сети с произвольным набором элементов.

Принципиальные схемы питающей сети выполняются в однолинейном изображении в соответствии с требованиями Единой системы конструкторской документации (ЕСКД) и ГОСТ 21.608.

  1. Запускаем программу Visio и в меню Файл выбираем команду Создать документ.
    Для удобной работы со схемой на панели инструментов Привязать и приклеить оставляем включёнными только пункты Привязка и Привязка к сетке.
    Настройка привязки
    Рис. 1
  2. Настраиваем Параметры страницы:
    • В меню Файл → Параметры страницы, на вкладке Размер страницы выбираем Предопределённый размер (например, А3).
    • Устанавливаем альбомную ориентацию.
    • На вкладке Масштаб документа задаём масштаб 1:1.
    • На вкладке Свойства страницы указываем:
      • Тип — Передняя;
      • Имя — произвольное;
      • Единицы измерения — Миллиметры.
    • Нажимаем OK.
  3. Через меню Файл → Открыть находим библиотеку трафаретов GOST Electro… и открываем набор Основные надписи. ГОСТ 2.104-68.
    Переносим на лист рамку, форму основной надписи и дополнительные графы, затем заполняем необходимые поля.
  4. Саму схему питающей сети удобнее чертить с помощью специализированных трафаретов из набора Питающая сеть, входящего в состав Комплекта для черчения электрических схем.
    Через меню Файл → Открыть открываем папку с библиотекой Питающая сеть и загружаем все содержащиеся в ней наборы элементов.
  5. Используя трафареты из открытых наборов, компонуем схему:
    • Из набора Текст переносим на чертёж «боковик» по форме 5 ГОСТ 21.608 (в данном случае — пользовательский вариант). При необходимости его можно разгруппировать, удалить лишние текстовые блоки, добавить новые методом копирования и изменить размеры.
    • Размещаем на чертеже трафарет питающих шин распределительного пункта:
      Питающие шины
      Рис. 2
    • Последовательно добавляем элементы одной из отходящих линий (для наглядности элементы выделены цветом на рисунке ниже):
      1. Трафарет аппарата защиты.
      2. Трафарет питающей (или кабельной) линии.
      3. Трафарет текстового блока параметров электроприёмника.
      Отходящая линия
      Рис. 3
  6. Выделяем текстовые поля и вносим свои значения.
    при необходимости наносим на схему соответствующие символы из открытых наборов трафаретов: нулевой рабочий проводник N, нулевой защитный проводник PE, нулевой защитный и нулевой рабочий совмещены PEN, символ количества проводников в линии 3L, и т. д.
  7. Поскольку схемы питания групп в большинстве случаев однотипны, остальные группы можно изобразить копированием уже начерченной:
    • Выделите все элементы группы с помощью мыши.
    • Удерживая клавишу Ctrl, подведите курсор к выделению — рядом с указателем появится значок +.
    • Нажмите левую кнопку мыши и переместите копию в новое место.
    • Для быстрого создания нескольких копий используйте клавишу F4 («Повторить последнее действие»).
    • Внесите необходимые изменения в текстовые блоки.

Аналогичным образом размещаем элементы ввода из набора трафаретов, заполняем надписи и пояснения — и схема питающей сети готова.

Ниже представлен шаблон схемы с дополнительными пояснениями. Вы можете открыть его в натуральную величину в новом окне:

Схема питающей сети
Схема питающей сети

Для последующих проектов можно использовать уже готовую схему в качестве шаблона. Это значительно сокращает время на создание новой схемы — до 20–40 минут в зависимости от её сложности.

Для того, чтобы мы могли качественно предоставить Вам услуги, мы используем cookies, которые сохраняются на Вашем компьютере. Нажимая СОГЛАСЕН, Вы подтверждаете то, что Вы проинформированы об использовании cookies на нашем сайте. Отключить cookies Вы можете в настройках своего браузера.